Descripción
Zona: Cordón Sur
Comodidades: Monoambientes, 1 y 2 Dormitorios
Ocupación: Junio 2028
NOW Salterain es un edificio de vivienda de diseño contemporáneo, pensado para satisfacer las necesidades del habitar cotidiano. Amparado bajo la ley de vivienda de interés social, se busco un diseño de edificio contemporáneo para conjugar intereses del inversor y del usuario final.
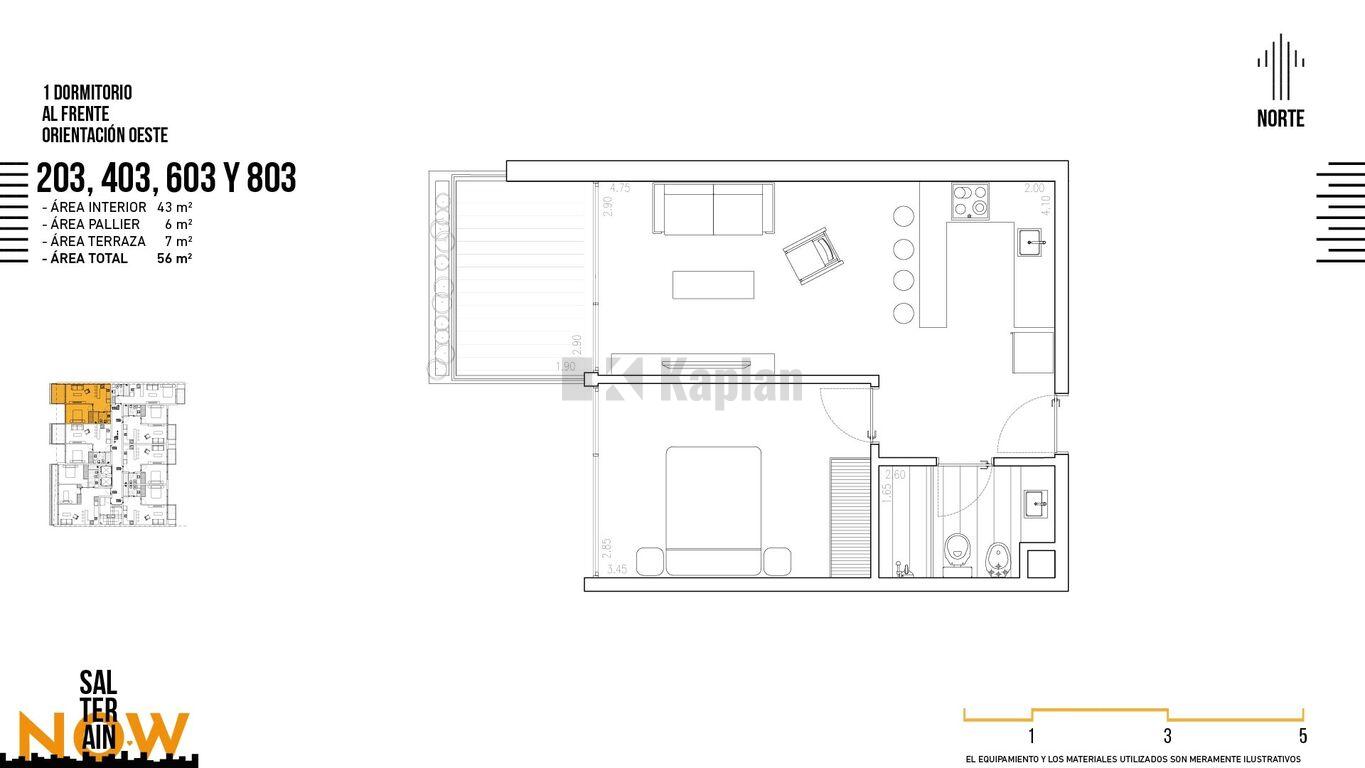
Con un total de 69 viviendas en 10 pisos habitables, se propusieron 7 apartamentos por nivel, donde 5 de ellas son unidades de un dormitorio, todas iguales en planta para así facilitar la ejecución de obra. Además de esas hay una unidad de dos dormitorios y una unidad mono ambiente por piso. Se diseñaron espacios de amenities en piso 11 donde se encuentran la barbacoa cerrada con parrillero, gimnasio y solárium con parrillero abierto.
Se concibió con un diseño de planta sencillo donde se estudió detalladamente el funcionamiento interno de las unidades al servicio del usuario. Como propuesta de partida se busca diseñar una planta con unidades amplias en metraje priorizando el espacio exterior de terraza como un plus adicional. Los balcones cambian de ubicación entre living comedor y dormitorio generando espacios en fachada de doble altura y beneficiando así el ingreso de luz a las unidades.
Comodidades: Monoambientes, 1 y 2 Dormitorios
Ocupación: Junio 2028
NOW Salterain es un edificio de vivienda de diseño contemporáneo, pensado para satisfacer las necesidades del habitar cotidiano. Amparado bajo la ley de vivienda de interés social, se busco un diseño de edificio contemporáneo para conjugar intereses del inversor y del usuario final.
Con un total de 69 viviendas en 10 pisos habitables, se propusieron 7 apartamentos por nivel, donde 5 de ellas son unidades de un dormitorio, todas iguales en planta para así facilitar la ejecución de obra. Además de esas hay una unidad de dos dormitorios y una unidad mono ambiente por piso. Se diseñaron espacios de amenities en piso 11 donde se encuentran la barbacoa cerrada con parrillero, gimnasio y solárium con parrillero abierto.
Se concibió con un diseño de planta sencillo donde se estudió detalladamente el funcionamiento interno de las unidades al servicio del usuario. Como propuesta de partida se busca diseñar una planta con unidades amplias en metraje priorizando el espacio exterior de terraza como un plus adicional. Los balcones cambian de ubicación entre living comedor y dormitorio generando espacios en fachada de doble altura y beneficiando así el ingreso de luz a las unidades.
Características de la propiedad
1 dorm
1
50 m2
603
Frente
Oeste
Terraza 7 m2
Opcional
Cocina Americana
Placares en Cocina
Prevision para A.A
Previsión para Lavarropas
Portero Eléctrico
Placares en Dormitorios

Envianos tu consulta